我公司所属果品批发市场拟采购一台数字式汽车衡(地磅),现向有意向的供应商征询报价,具体需求如下:
一、设备清单
1、产品型号规格:
产品名称 | 型号 | 规格 (宽*长) | 单位 | 数量 |
数字式电子汽车衡(地磅) | SCS-80t | 3.2m*18m | 台 | 壹 |
2、产品配置包含下列内容:
序号 | 部件名称 | 规格 | 数量 | 单位 |
1 | 汽车衡秤体 | 18m (L)×3.2m(W) | 1 | 套 |
2 | 数字式称重传感器 | 柱式 | 8 | 支 |
3 | 称重显示仪表 | 物联网仪表 | 1 | 台 |
4 | 红绿灯 | 圆灯 | 1 | 个 |
5 | 广播功放 | / | 2 | 个 |
6 | 室外音柱(无源) | 60W | 1 | 个 |
7 | 鹅颈麦克风 | / | 2 | 个 |
8 | 计量服务终端 | / | 1 | 个 |
9 | 交换机 | 5口 | 1 | 个 |
10 | 采集仪 | / | 1 | 台 |
11 | 设备一体化立杆 | 3m | 1 | 台 |
12 | 汽车衡安装调试 | / | 1 | 项 |
二、主要技术参数、功能:
序号 | 综合技术参数 |
1.1 | 额定称量:80吨 |
1.2 | 最大安全过载:125%FS |
1.3 | 允许通过的汽车轴载:40吨 |
1.4 | 检定分度值:50kg |
1.5 | 基础形式:浅基坑,地下式 |
1.6 | 精度:III级 |
1.7 | 电源:220VAC(-15%~+10%),50Hz±2% |
1.8 | 主要设备,包括秤台、称重传感器、称重仪表应选用知名国产品牌产品,并且是同一品牌产品,从而保障产品的质量和售后服务 |
1.9 | 汽车衡使用寿命:不小于100万次 |
1.10 | 防作弊要求:要求汽车衡传感器具备动态密码校验功能, 保护数据不受作弊影响 |
1.11 | 要求秤体需具备方便的横纵向限位装置,无需打开盖板即可调节 |
1.12 | 汽车衡生产完毕后需在厂内试安装并经满量程砝码标 定合格后方可出厂 |
1.13 | 安装后按JJG539-2016检定符合Ⅲ级标准 |
1.14 | 为保证汽车衡焊接质量,制造商需通过焊接管理体系认证 |
1.15 | 为避免车辆经过汽车衡时轮胎夹带的泥沙石头等杂物渗漏到秤体内部,对传感器产生损伤影响计量性能,汽车衡 需内置防渗漏装置。 |
| 称台技术参数 |
2.1 | 汽车衡秤台应由钢板建造,秤台节数:3节 |
2.2 | 尺寸18m (L)×3.2m(W),安全系数:>2.5, 秤台刚性 优于:1/1000 |
2.3 | 秤体使用U型钢结构,抗疲劳性强,秤台支撑结构形式: U型钢 |
2.4 | 秤台结构形式应采用U型钢梁结构,所有的钢板和U型钢材必须采用施压的方法进行矫直和弯曲,禁止捶击。要求U型梁分布合理,确保秤体整体强度和局部强度匹配,同 时均匀分散载荷到各个传感器 |
2.5 | 秤台端板采用Q235B钢材 |
2.6 | 电子汽车衡所使用的全部钢材不能有锈蚀缺陷或有氧化皮、秤体在焊接、喷漆之前,钢板和U型钢必须用抛丸机进行抛丸处理,去除钢材表面的锈迹和增强钢材表面的强度,钢材进行抛丸预处理和相应的油漆。除锈等级不低于 Sa2.5级。 |
2.7 | 秤体油漆具有良好的耐腐蚀、耐候性能和环保要求,底漆采用H06-4 环氧富锌,面漆采用聚氨酯面漆;漆膜厚度 ≥80微米。 |
2.8 | 要求秤台面板厚度≥12mm。所选材质要求为Q235B钢材。秤台要求选用本钢、武钢、敬业钢铁、日钢、宝钢、南钢、 鞍钢、重钢等知名钢厂生产的钢材。 |
2.9 | 主要承载结构采用碳素结构钢制造,其化学成分和力学性 能符合GB700-2006的规定。 |
2.10 | 称重平台应没有灰尘及水积存的坑凹,防止发生腐蚀;秤台表面需平整光滑没有螺栓、螺母以及安装孔等。 |
2.11 | 秤台的铭牌上应有制造厂家、计量准确度等级、最大秤量、检定分度值,计量器具型式批准证书编号、出厂编号、本 秤不具备欺骗性使用的特征等标志。 |
| 传感技术参数 |
3.1 | 选用国产品牌柱式数字传感器 |
3.2 | 传感器应满足国准要求,具备计量器具型式批准证书。 |
3.3 | 传感器材质:全不锈钢 |
3.4 | 采用全密封型,防护等级需达到IP69K,应具有防尘、防 水、防晒、防腐、抗射频干扰,防作弊性能 |
3.5 | 每个数字传感器均含有微处理器,采用纯数字补偿技术 (包括对非线性,滞后,蠕变和温度的补偿) |
3.6 | 最大安全过载:125%F.S. |
3.7 | 精度:C6 |
3.8 | 防雷击性能:具有防二次雷击功能,通过80000安培及以 上防雷击测试 |
3.9 | 传感器需为无接线盒设计,串联组秤 |
3.10 | 使用温度:-30℃~+70℃ |
3.11 | 传力机构应能自动保持垂直受力状态以缓冲限位,保证衡 器的长期使用精度 |
3.12 | 传感器数据需在仪表中储存,仪表与数字式传感器能实现通讯,能够通过仪表键盘控制传感器进行角差调整,方便 后期维护、更换及保养 |
3.13 | 传感器具备自诊断功能,故障排除迅速,更换传感器不需 要重新标定 |
3.14 | 传感器需通过100万次及以上疲劳测试 |
3.15 | 数字传感器通讯方式RS485 |
| 称重显示仪表技术参数 |
4.1 | 采用不锈钢外壳,抗干扰 |
4.2 | 仪表可以直接连接打印机打印称重记录,也可与计算机连 接,组成称重管理系统 |
4.3 | 全中文显示操作界面,可以输入中文、字母和数字。 |
4.4 | 需要可储存≥1000组车号皮重,≥4500组最新称重记录, ≥300组最新不完整称重记录 |
4.5 | 需支持中英文输入,车号中汉字/字母/数字皆可显示 |
4.6 | 用户可通过网络远程配置打印参数、PC通讯参数、仪表 地址信息和售后服务信息等 |
4.7 | 具有开壳检测装置,防止通过非法打开外壳更改仪表内部 电路,来实现影响计量与网络通讯的目的 |
4.8 | 具备物联网功能(防作弊),可以通过手机、PAD、电脑 等终端设备连接 |
4.9 | 可对设备进行监管,源头上解决计量准确性及防作弊;可对已发生设备及故障进行分析;可通过app查询传感器使 用情况,称重车辆作弊时app自动发出警报 |
4.10 | 具备检定周期设置和铅封功能 |
备注:土建基础施工由我公司负责。
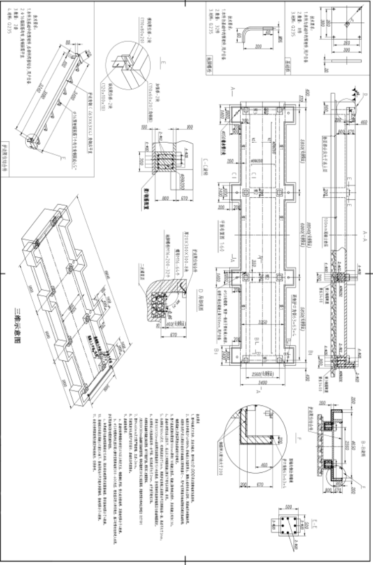
三、基础安装图示

四、质保期:验收合格后一年,质保期中1小时内做出维修响应,12 小时内排除故障;
五、付款方式:
全部施工完成验收合格后支付合同总金额的95%,剩余5%作为项目质保金,待一年质保期结束后支付。
六、报价要求:本项目为包干总报价,包括运费、吊车费、安装调试费、检定费、税费等所有费用;
七、安装及送货地点:果品市场北门入口旁;
注:请意向单位自行查看现场。
八、报价供应商资格要求:
1、需为汽车衡生产厂家及代理商(代理商需持有厂家授权书)且能提供增值税专用发票的企业;
2、2024年度纳税信用等级为D级的单位不得参与报价;
3、“信用中国”网站的查询结果为失信被执行人的不得参与报价;
4、所投产品需具有生产厂家电子汽车衡、传感器及仪表的计量器具型式批准证书的企业;
5、所投产品需具备生产厂家电子汽车衡秤台限位结构相关的专利证书的企业;
6、所投产品需具备生产厂家秤台防渗漏结构相关的专利证书的企业;
7、所投产品能提供第三方出具的IP69K防护等级测试报告的企业;
8、所投产品能提供第三方出具的传感器C6精度等级测试报告的企业;
9、所投产品企业至少1名技术人员具有衡器装配调试工证书;
10、所投产品企业至少1技术人员具有二级计量师证书。
九、说明
本次询价如总报价超出10万元,另行组织招标。
十、报价供应商需提交的资料:
1、统一社会信用代码营业执照复印件;
2、从电子税务局打印的2024年纳税人信用等级证明;
3、“信用中国”网站的查询结果打印件或截图;
4、生产厂家电子汽车衡、传感器及仪表的计量器具型式批准证书的扫描件或复印件;
5、生产厂家电子汽车衡秤台限位结构相关的专利证书的扫描件或复印件;
6、生产厂家秤台防渗漏结构相关的专利证书的扫描件或复印件;
7、第三方出具的IP69K防护等级测试报告的扫描件或复印件;
8、第三方出具的传感器C6精度等级测试报告的扫描件或复印件;
9、至少1名技术人员具有衡器装配调试工证书的扫描件或复印件;
10、至少1技术人员具有二级计量师证书的扫描件或复印件;
11、报价单(格式详见附件附件-cvIx.docx)。
(以上材料都要加盖单位公章后并密封,封口处加盖公章)
十一、报价资料寄送地址:闽侯县南通镇海峡农副产品物流中心海峡冻品批发市场行政楼五楼518-2信息工程部
十二、递交报价资料截止时间:2025年10月17日下午16:00。
福州民天实业有限公司
2025年10月13日